 
          
          
          
          
          
          
         <
>
 
         
         
         
         
         
         
        Opdrachtgever: Musis en Stadstheater Arnhem
Opdracht: ontwerp en advies, begeleiding aanbesteding en oplevering audiovisuele voorzieningen en kabelinfrastructuur
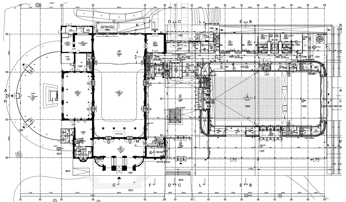
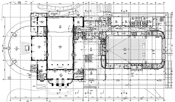
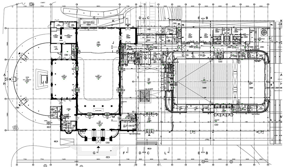
Omvang: nieuwbouw en renovatie monumentaal gebouw
Start project: november 2014
Oplevering: november 2017
Architect: Van Dongen - Koschuch
Uitvoering: Mertens Bouw, Homij Technische Installaties
Adviseurs: Stevens van Dijck Bouwmanagers en Adviseurs,Nelissen Ingenieursbureau, Peutz, Jaap Oostveen, Theater Advies
Publicaties:
Awards:
Adres: Velperbinnensingel 10, 6811 BP Arnhem
Telefoon: 026 443 7343
Website: www.musisenstadstheater.nl
QUOTE:
'Als je een project opstart met een dermate hoog ambitie gehalte op technisch vlak, zoals bij het verbouwen van Musis te Arnhem, dan kun je twee dingen doen. Je kan het helemaal zelf oppakken of je omringen met specialistische kennis en begeleiding en hiervan op vele manieren profiteren. Wij kozen voor het laatste en daarbij was de keuze voor Piqture eenvoudig. Zij laten je constant voelen dat betrokkenheid, kennis en slagvaardigheid wel degelijk bij een partij kan zitten. Het comfortabele gevoel van gehoord, gezien en zeker begrepen worden, terwijl je zelf achterover kan gaan zitten en genieten...."
– Mike van Dalm, hoofd techniek Musis Arnhem –
© 2018
ONTWERP EN REALISATIE: WWW.AMMARIN.NL